€4,200,000 На продажу
Kato Polemidia Лимассол
Здания В Стадии Строительства
- Спальни
899m² Крытая
- Участок

Здания НА ПРОДАЖУ
в Лимассол, Kato Polemidia
REF. NO. 42349

Поднимите свой бизнес на новый уровень с нашим первоклассным коммерческим пространством, доступным для продажи или аренды, расположенным в самом оживленном центре города. Воспользуйтесь возможностью разместить свое предприятие в районе с высоким пешеходным трафиком и отличной видимостью.

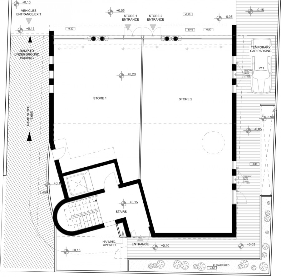
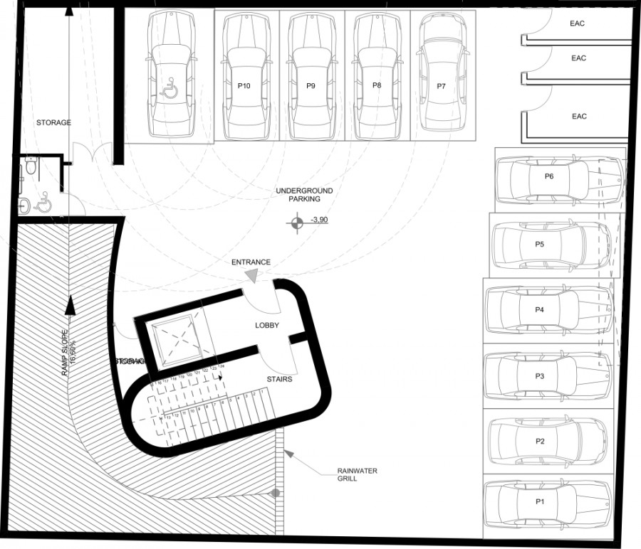
Объект находится в самой востребованной части города, что гарантирует постоянный поток посетителей и максимальную экспозицию. Общая площадь — 1454 кв.м, представляющая собой универсальное пространство, готовое к трансформации в идеальный офис или торговую площадку. Подвал занимает внушительные 428,75 кв.м, каждый этаж — по 200 кв.м, сверху — доступная крыша с садом. Современный и выразительный архитектурный стиль.

Для удобства посетителей предусмотрено 11 парковочных мест.

Сдача объекта — июль 2025 года.

Below Limassol highway
Город: 5 мин. Езды
Гостевой туалет
Кладовая
Кондиционирование воздуха
Лифт
Охранная сигнализация
Плюс НДС
Пляж: 10 минут езды
Сад на крыше
Частная парковка (крытая)
КАРТA МЕСТОПОЛОЖЕНИЯ
ЭТОТ ВЕБ-САЙТ ИСПОЛЬЗУЕТ COOKIES
Мы используем файлы куки, чтобы обеспечить вам лучший опыт работы на нашем веб-сайте. Если вы продолжите использовать сайт, мы предположим, что вы согласны получать их. Обязательно прочтите нашу политику COOKIES