€4,250,000 На продажу
Agios Nikolaos Лимассол
Офис Вторичная Недвижимость
- Спальни
850m² Крытая
550m² Участок

Офис НА ПРОДАЖУ
в Лимассол, Agios Nikolaos
REF. NO. 38103

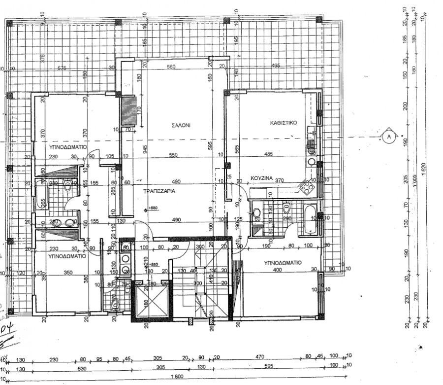
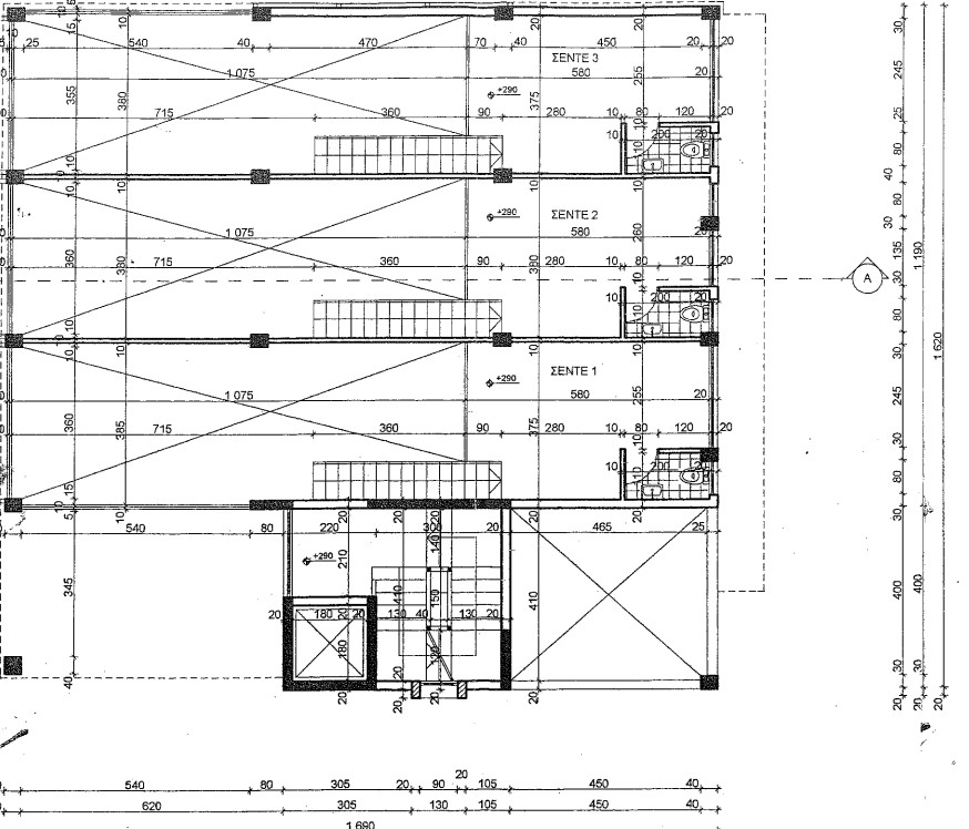
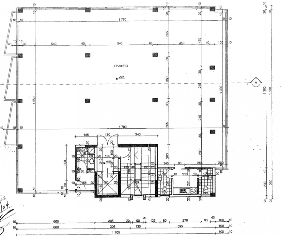
Представляем уникальную возможность приобрести целое офисное здание, идеально расположенное в самом центре, в пешей доступности от моря и всех необходимых удобств. Первый этаж идеально подходит для розничной торговли, обеспечивая отличную видимость и легкий доступ. Первый и второй этажи, каждый площадью 295 м², предлагают обширное пространство для различных офисных планировок, тщательно продуманных для максимальной функциональности.

Здание также располагает 12 частными парковочными местами, что обеспечивает удобство для всех сотрудников и посетителей.

Дополнительно имеется крыша площадью 80 м², которая идеально подходит для перерывов сотрудников или проведения частных мероприятий, что делает объект еще более привлекательным как универсальное офисное решение.

Below Limassol highway
Аэропорт: 30 мин езды
Без НДС
Город: шаговой доступности
Кондиционирование воздуха
Лифт
Мебель по договоренности
Отдельная кухня
Пляж: в шаговой доступности
Сад на крыше
Частная парковка (не крытая)
КАРТA МЕСТОПОЛОЖЕНИЯ
ЭТОТ ВЕБ-САЙТ ИСПОЛЬЗУЕТ COOKIES
Мы используем файлы куки, чтобы обеспечить вам лучший опыт работы на нашем веб-сайте. Если вы продолжите использовать сайт, мы предположим, что вы согласны получать их. Обязательно прочтите нашу политику COOKIES