€500,000 На продажу
Ayios Ioannis Лимассол
Пентхауз Новая Недвижимость
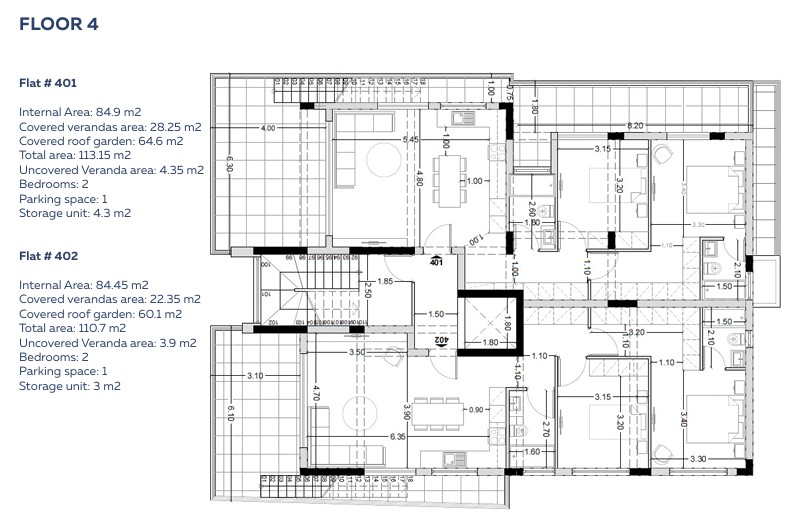
2 Спальни
113m² Крытая
- Участок

Пентхауз НА ПРОДАЖУ
в Лимассол, Ayios Ioannis
REF. NO. 42514

Откройте для себя изысканный жилой комплекс, расположенный в тихом и уютном районе Агиос Иоаннис, где царит подлинная средиземноморская атмосфера. Проект идеально сочетает в себе спокойствие с городским ритмом жизни, предлагая близость как к историческому центру, так и к новой пристани — для тех, кто ценит удобство, стиль и насыщенную городскую среду.

Проект включает шесть односпальных и пять двуспальных квартир, разработанных с учетом современных потребностей и приоритетом на комфорт и функциональность. Элегантная отделка придает каждому пространству ощущение уюта и утончённости.

Комплекс ориентирован на устойчивое развитие: индивидуальные фотоэлектрические системы помогают снижать затраты на электроэнергию, а в зоне парковки предусмотрены подключения для зарядки электромобилей на каждом месте. В шаговой доступности находятся все необходимые удобства — пекарни, фруктовые лавки, аптеки и прочие важные объекты повседневной жизни.

Круглогодичный комфорт обеспечивают солнечные панели, водонагревательные коллекторы, двухкамерные стеклопакеты и теплоизолированные фасады, создающие идеальный микроклимат в любое время года — тепло зимой и прохладу летом.

Надёжность и качество подтверждаются использованием премиальных строительных материалов, что гарантирует долговечность и уверенность в каждом элементе жилья. Для активных жителей поблизости расположен фитнес-центр, а для отдыха — множество кафе и ресторанов в марине и старом городе.

Всего в нескольких минутах езды — торговый центр с широким выбором магазинов и услуг.

В стоимость данной квартиры включены часьный сад на крыше и отдельная комната для персонала.

Below Limassol highway
EV charging provision
Photovoltaic System
Город: 5 мин. Езды
Кладовая
Кондиционирование воздуха
Лифт
Пляж: 5 мин.
Частная парковка (крытая)
Энергетический Класс А
Энергетический Класс А
A+
A
B
C
D
КАРТA МЕСТОПОЛОЖЕНИЯ
ЭТОТ ВЕБ-САЙТ ИСПОЛЬЗУЕТ COOKIES
Мы используем файлы куки, чтобы обеспечить вам лучший опыт работы на нашем веб-сайте. Если вы продолжите использовать сайт, мы предположим, что вы согласны получать их. Обязательно прочтите нашу политику COOKIES